Бабушки на рынке отдали коробки просто так, а я сделала из них обалденный стеллаж - «Своими руками» » Своими Руками.
Lee
Опубликовано: 00:00, 14 ноября 2023
Сделай сам

Бабушки на рынке отдали коробки просто так, а я сделала из них обалденный стеллаж - «Своими руками»

Бабушки на рынке отдали коробки просто так, а я сделала из них обалденный стеллаж - «Своими руками»

С трудом верится, что такой массивный, просторный, добротный стеллаж собран из обыкновенных картонных коробок! На него можно спокойно ставить цветы, книги и всякую мелочь. Главное — укрепить картонные стенки, чтобы они выдерживали нагрузку и ровно стояли. Великолепная идея из гофрокартона!



Бабушки на рынке отдали коробки просто так, а я сделала из них обалденный стеллаж - «Своими руками»
ЭлеменДарья DIY/youtube

Что понадобится:



  • коробки из гофрокартона;

  • скотч;

  • ножницы;

  • термоклей;

  • самоклеящаяся плёнка/салфетки/обои на выбор;

  • фетр/подложка под мебель.


ЭлеменДарья DIY/youtube

Процесс изготовления


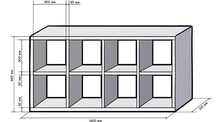
Схема стеллажа довольно простая. Нужно вырезать из картона достаточное количество деталей, чтобы собрать стеллаж по схеме ниже.


ЭлеменДарья DIY/youtube

Соберите 8 квадратов из гофрокартона. Скрепляйте картонные детали между собой на скотч или термоклей.


ЭлеменДарья DIY/youtube

Теперь соберите все 8 квадратов воедино. Уже похоже на стеллаж!


ЭлеменДарья DIY/youtube

Конечно, необходимо дополнительно укрепить стенки стеллажа, чтобы на них можно было что-то положить. Для этого нарастите толщину стенок перемычками из картона.


Для горизонтальных (слева) и вертикальных (справа) стенок:


ЭлеменДарья DIY/youtube

С помощью термоклея закройте боковые стенки толстым картоном. Это даст дополнительную жёсткость и устойчивость конструкции.


ЭлеменДарья DIY/youtube

После фиксации стенок закройте открытые части тонкими полосками из того же картона. Это придаст стеллажу законченный вид.


ЭлеменДарья DIY/youtube

Завершающий штрих — оклейка. Здесь каждый человек подберёт что-то для себя.


Совет

Выберите, чем украсить стеллаж: салфетками в технике декупаж, самоклеящейся плёнкой,
остатками обоев или даже распечатанными на принтере картинками.

ЭлеменДарья DIY/youtube

Чтобы стеллаж стоял на одном месте, на дно прикрепите полоски из фетра или специальные мебельные подложки. Готовый результат и правда впечатляет! Особенно если учесть, что в основе этого стеллажа — картон и горячий клей.


ЭлеменДарья DIY/youtube

Цитирование статьи, картинки - фото скриншот - Rambler News Service.
Иллюстрация к статье - Яндекс. Картинки.
Есть вопросы. Напишите нам.
Общие правила  поведения на сайте.

С трудом верится, что такой массивный, просторный, добротный стеллаж собран из обыкновенных картонных коробок! На него можно спокойно ставить цветы, книги и всякую мелочь. Главное — укрепить картонные стенки, чтобы они выдерживали нагрузку и ровно стояли. Великолепная идея из гофрокартона! ЭлеменДарья DIY/youtube Что понадобится: коробки из гофрокартона; скотч; ножницы; термоклей; самоклеящаяся плёнка/салфетки/обои на выбор; фетр/подложка под мебель. ЭлеменДарья DIY/youtube Процесс изготовления Схема стеллажа довольно простая. Нужно вырезать из картона достаточное количество деталей, чтобы собрать стеллаж по схеме ниже. ЭлеменДарья DIY/youtube Соберите 8 квадратов из гофрокартона. Скрепляйте картонные детали между собой на скотч или термоклей. ЭлеменДарья DIY/youtube Теперь соберите все 8 квадратов воедино. Уже похоже на стеллаж! ЭлеменДарья DIY/youtube Конечно, необходимо дополнительно укрепить стенки стеллажа, чтобы на них можно было что-то положить. Для этого нарастите толщину стенок перемычками из картона. Для горизонтальных (слева) и вертикальных (справа) стенок: ЭлеменДарья DIY/youtube С помощью термоклея закройте боковые стенки толстым картоном. Это даст дополнительную жёсткость и устойчивость конструкции. ЭлеменДарья DIY/youtube После фиксации стенок закройте открытые части тонкими полосками из того же картона. Это придаст стеллажу законченный вид. ЭлеменДарья DIY/youtube Завершающий штрих — оклейка. Здесь каждый человек подберёт что-то для себя. ЭлеменДарья DIY/youtube Чтобы стеллаж стоял на одном месте, на дно прикрепите полоски из фетра или специальные мебельные подложки. Готовый результат и правда впечатляет! Особенно если учесть, что в основе этого стеллажа — картон и горячий клей. ЭлеменДарья DIY/youtube
Заметили ошЫбку
Выделите текст и нажмите Ctrl+Enter
Обсудить (0)

Top.Mail.Ru